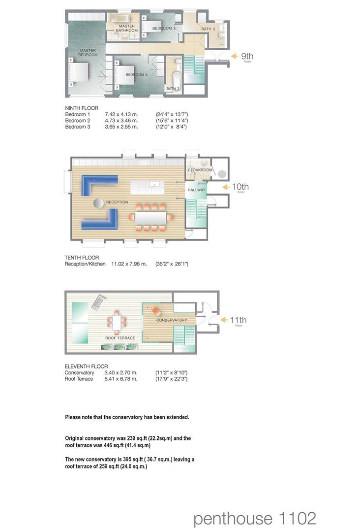
Available to rent, spread over the ninth, tenth, and eleventh floors of an imposing building in the heart of St John’s Wood, this spacious two-bedroom upside-down penthouse has been styled with elegant living in mind.
An entrance on the ninth floor opens into a hallway with direct access to the master bedroom linked to its own private master bathroom, with double vanity sinks and a walk-in shower. Next door, a second double bedroom is serviced by its own en-suite.
The stairway leads the way to a commodious, modern, and elegant open-plan living and dining area creating a sociable and inclusive feel. An adjoining semi-open plan kitchen has been effortlessly assembled with grey units and a contrasting dark oak wooden floor. Also, on this floor, a convenient pantry and guest cloakroom.
The eleventh floor, with its architecturally styled conservatory and uber-cool roof terrace, characterises the whole feel of the apartment and transforms the home into the epitome of elegant living in the heart of the urban jungle.
St John’s Wood Park is well-positioned for the popular shops, restaurants, and transport links in St John’s Wood. It is also equidistant to the fashionable South Hampstead and Swiss Cottage, as well as Paddington Station.
