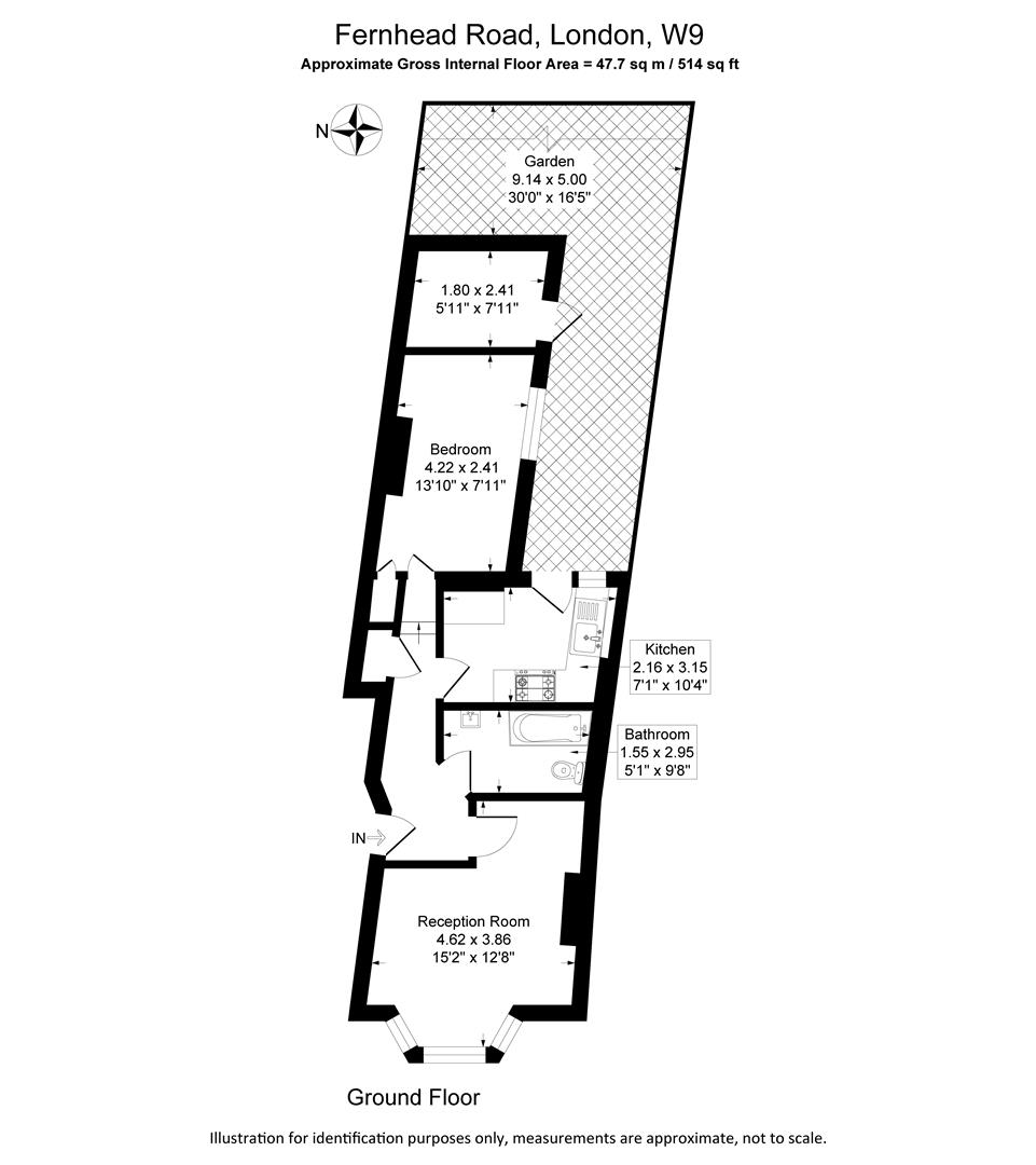
An un-modernised ground floor garden flat, situated within a Victorian terrace on Fernhead Road. Currently laid out as a large one bedroom flat, with potential to extend into the garden to create a two bedroom flat, subject to the usual planning consents.
Benefits include share of freehold and proximity to Westbourne Park Station, and being within easy reach of Paddington Recreation Ground and the cafés and restaurants of Maida Vale.
Excellent transport links are available nearby, with Westbourne Park Station (Circle and Hammersmith & City lines) providing convenient Underground access across London, while Queen’s Park Station is also within walking distance for the Bakerloo line and London Overground services. A number of local bus routes run along Harrow Road and surrounding streets, offering direct connections towards Paddington, the West End and beyond.
