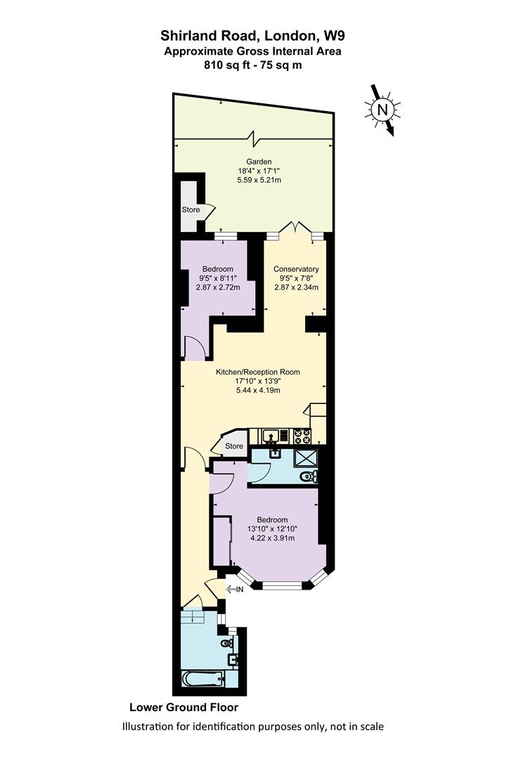
A fantastic two bedroom garden flat. This stylish flat comprises a spacious master bedroom with an en-suite bathroom, double bedroom, further bathroom and an open plan kitchen/reception leading onto a conservatory and a private garden at the rear. The apartment benefits from double glazing, wooden floors throughout and a fully fitted kitchen. Situated close to Warwick Avenue and Maida Vale tube stations (Bakerloo Line). Available mid January 2023.
